4008320692
河南省南阳市雪枫路与南新路交汇处

详情
适用范围
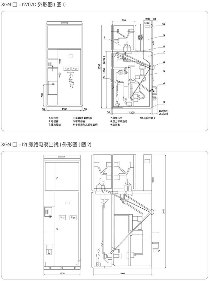
XGN2-12箱型固定式金属封闭开关设备是由西安高压电器研究所开发和研制的高压成套开关设备。设备所用主要一次元件均属重新设计,与目前主要使用的手车式开关柜和GG一1(A)F型开关柜相比具有较高的绝缘水平和防护等级,内部不采用任何形式的相间和相对地隔板及绝缘气体,二次回路不采用二次插头(即不管设备在何种状态下,保护和控制回路是始终贯通的);产品用于3-lOkV单母线,单母线带旁路系统中作为接受和分配电能的
高压成套设备。本产品符合“五防”要求a
产品各项指标符合GB3906《3-35kV交流金属封闭开关》、IEC298技术标准。


